1304 Olive St
Denver, CO 80220

Scroll to Content

Details

Iconic. Irreplaceable.
Ardmore Place is an updated Cochrane Victorian estate built for Montclair’s first mayor, set on a remarkable 13,500-sf park-like lot and offering historic character without landmark restrictions.

  • 5 Bedrooms
  • 5 Bathrooms
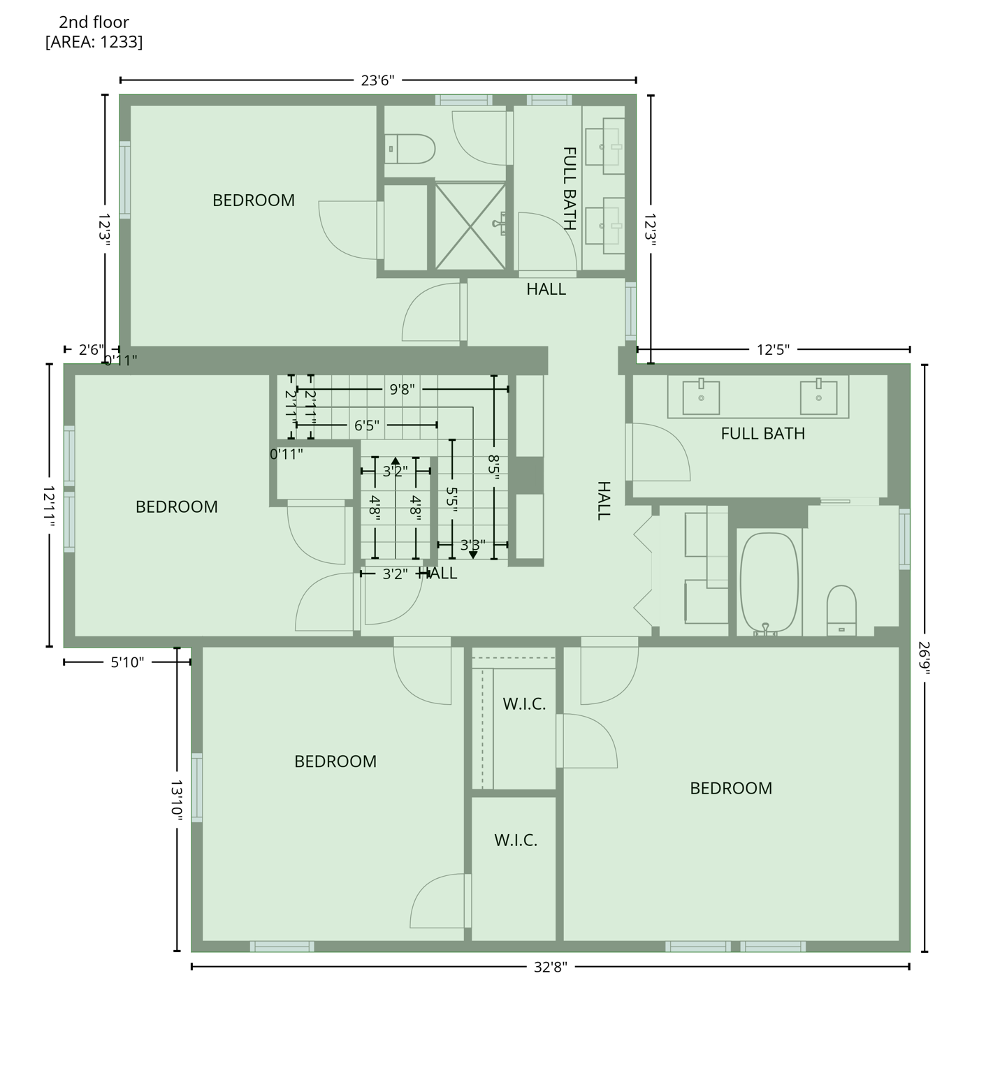
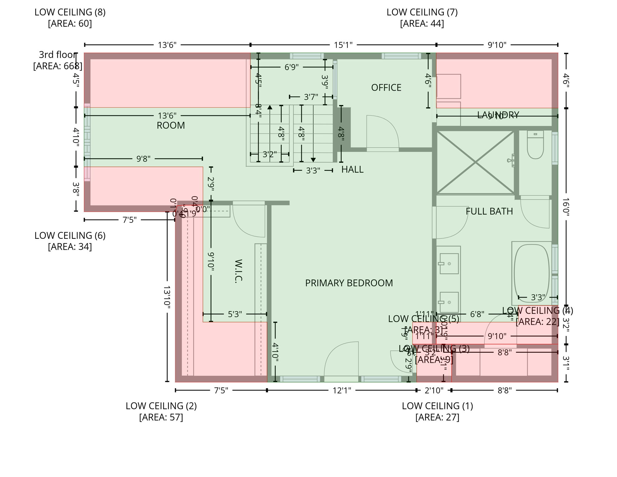
  • 4,158 Sq/ft

Videos

Images

3D Tour

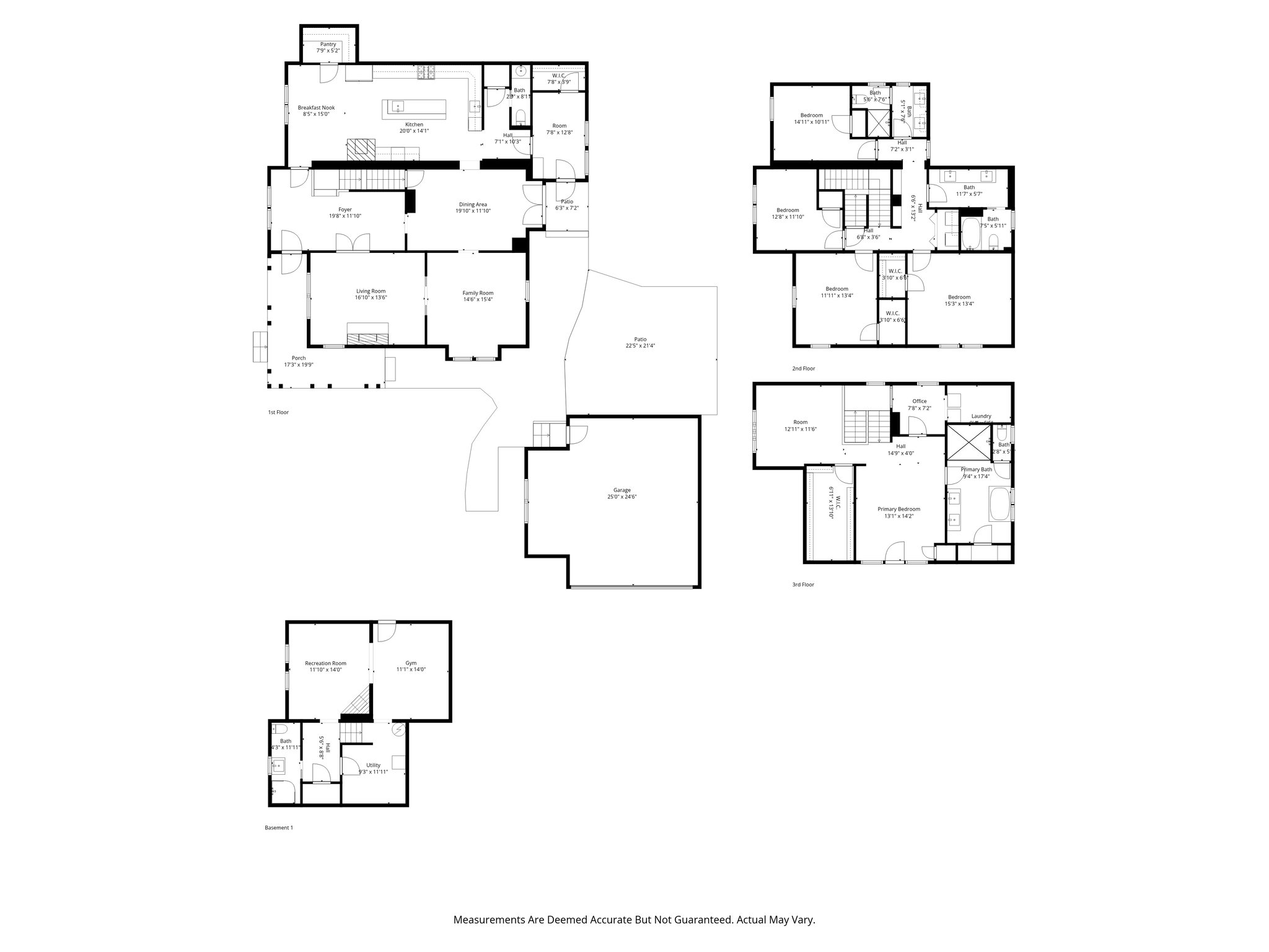
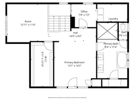
Floor Plans