34618 Lyttle Dowdle Dr, Golden, CO
Toggle Navigation
3D Tour
Images
Videos
Floor Plans
Map
34618 Lyttle Dowdle Dr
Golden, CO 80403
Scroll to Content
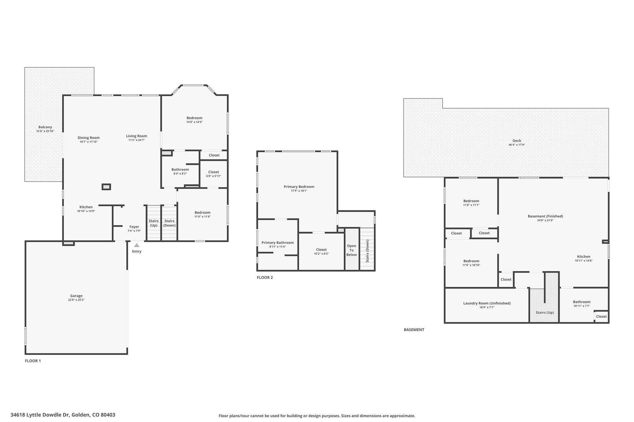
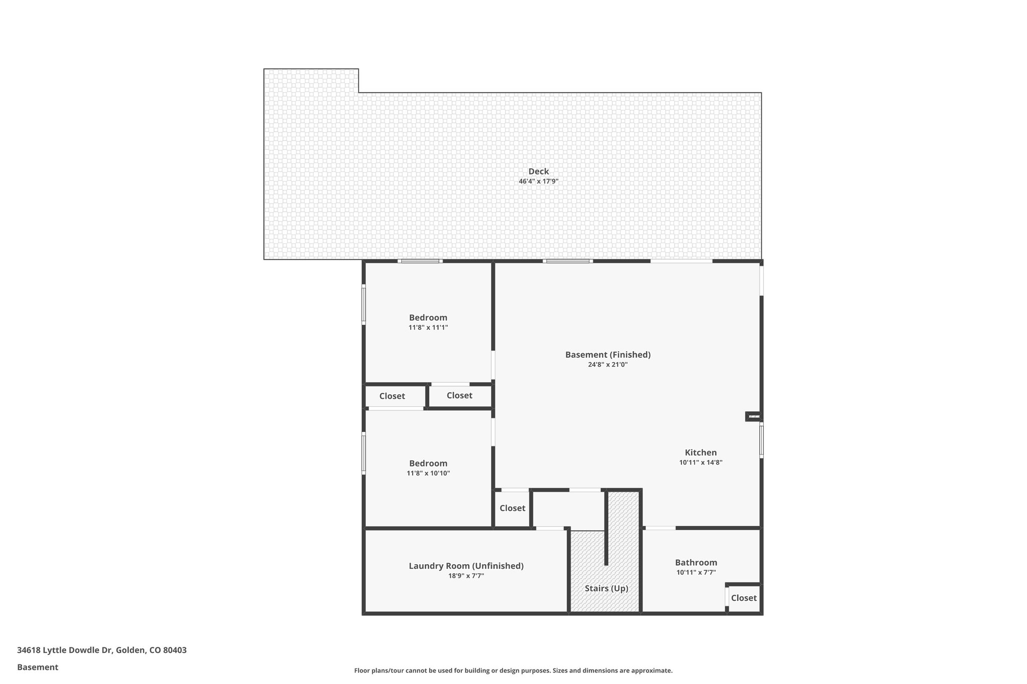
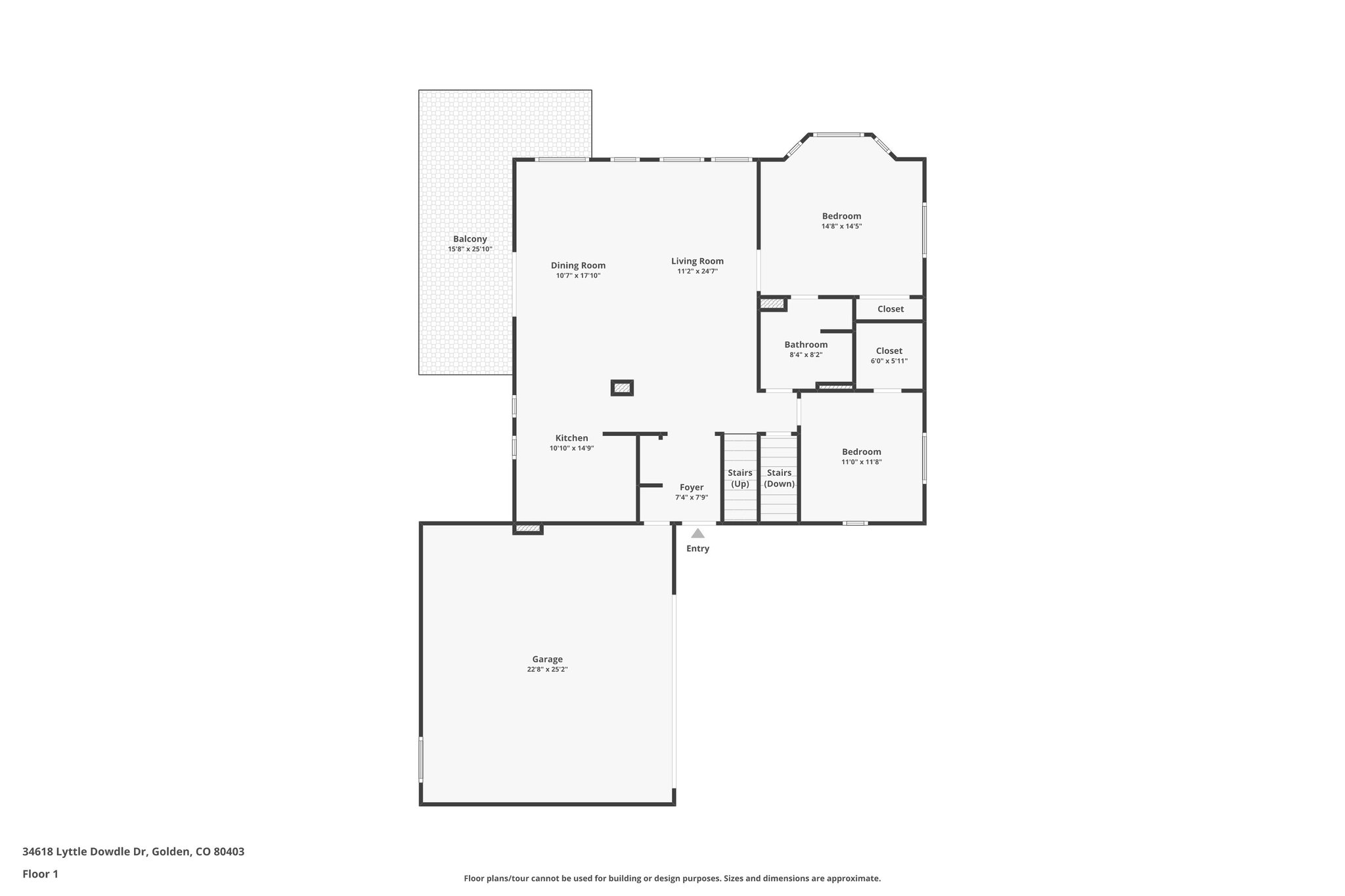
Details
$950,000
5 Bedrooms
3 Bathrooms
3,408 Sq/ft
3D Tour
Images
Slideshow
Photo Grid
Hide
Previous
Next
Show more
Videos
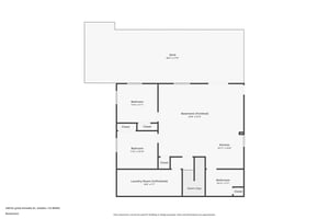
Floor Plans
Slideshow
Photo Grid
Hide
Previous
Next