6034 S Steele St, Centennial, CO
Toggle Navigation
3D Tour
Images
Floor Plans
Map
6034 S Steele St
Centennial, CO 80121
Scroll to Content
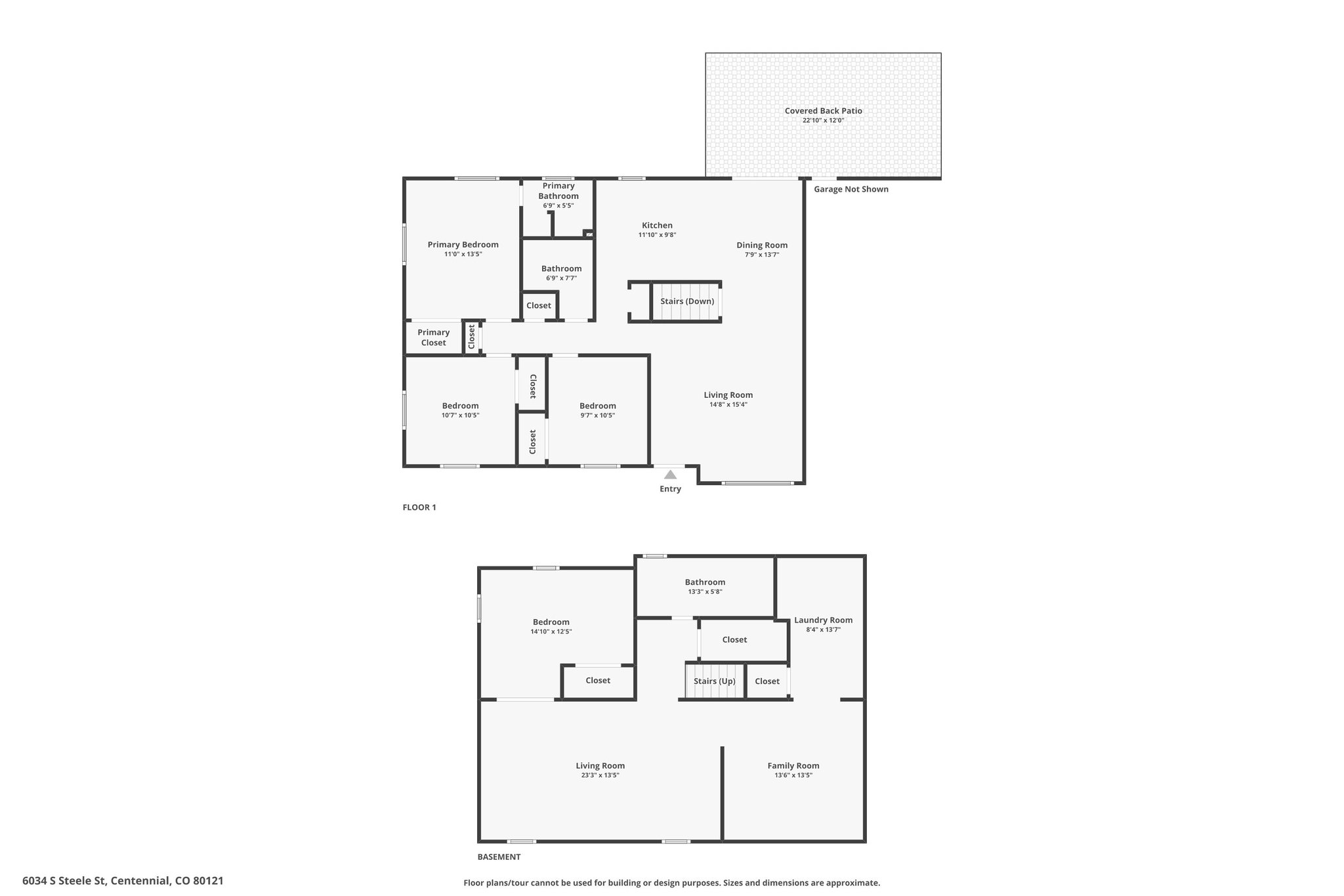
Details
$710,000
4 Bedrooms
3 Bathrooms
2,273 Sq/ft
3D Tour
Images
Slideshow
Photo Grid
Hide
Previous
Next
Show more
Floor Plans
Slideshow
Photo Grid
Hide
Previous
Next