4670 Beach Ct, Denver, CO
Toggle Navigation
Videos
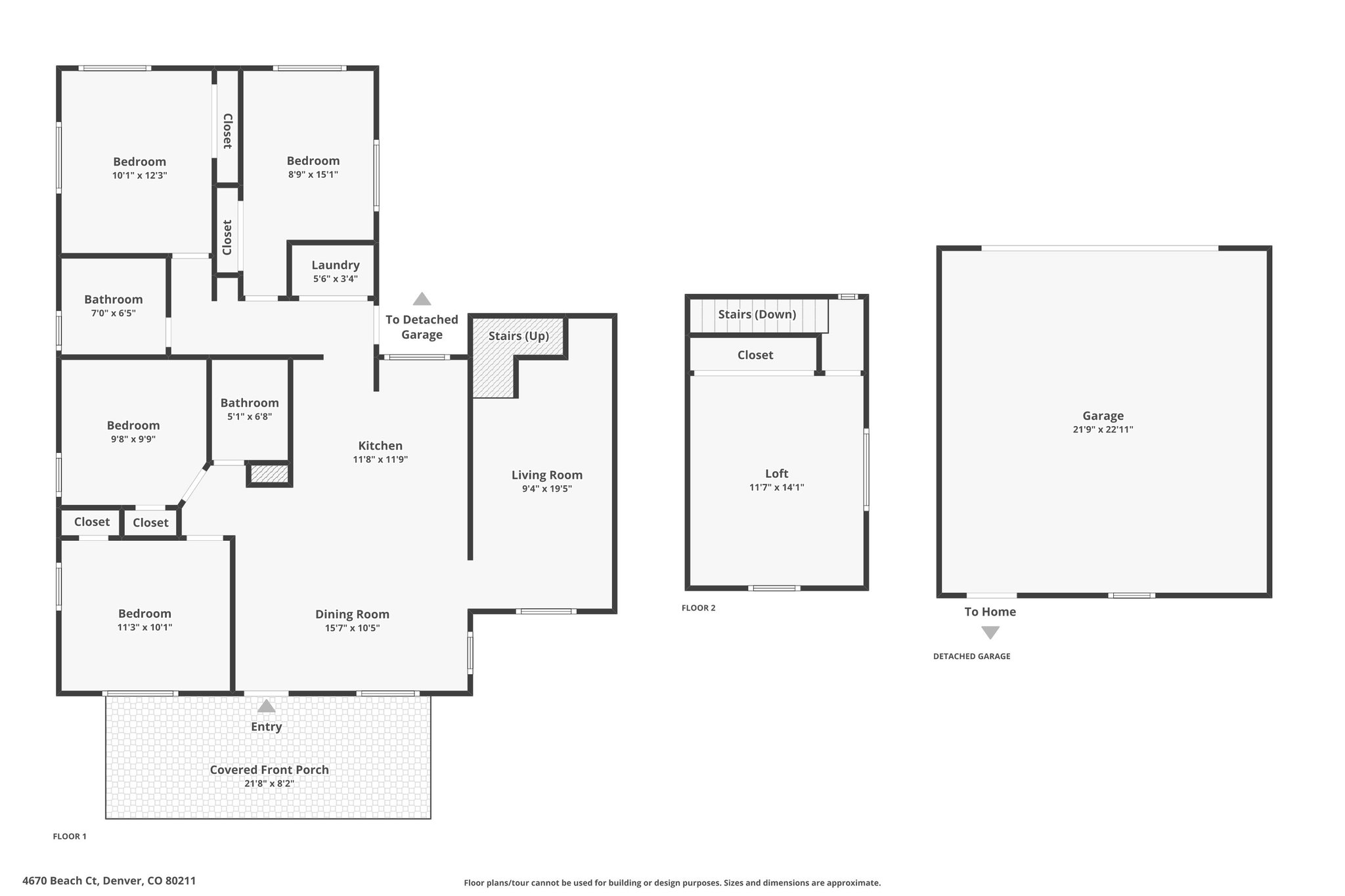
Floor Plans
3D Tour
Map
4670 Beach Ct
Denver, CO 80211
Scroll to Content
Details
4 Bedrooms
2 Bathrooms
1,566 Sq/ft
Videos
Floor Plans
Slideshow
Photo Grid
Hide
Previous
Next
3D Tour